Открий своя дом в Лабиринта!
0882 66 26 66

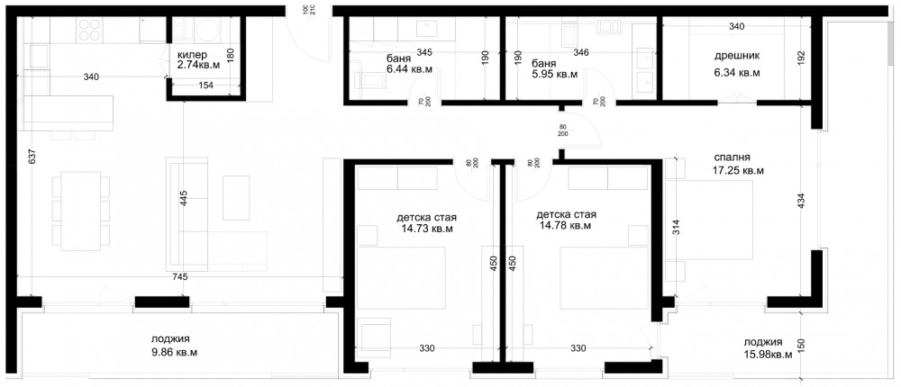
Апартамент Е31

Блок Е - Апартамент Е31

Продаден

Информация

ID: Апартамент Е31
Сграда: Блок Е
Етаж: 7
Тип: Четиристаен
Изложение: Изток
Обща площ: 189.95 кв.м.
Чиста площ: 169.41 кв.м.
Цена: 0€
Такса поддръжка: 63€

Блок Е

Схема на етажа

Сградите
Спазени са всички показатели на застрояване, предвидени в ПУП, като разработката не цели количествено, а качествено застрояване. Създаден е модерен ансамбъл от жилищни сгради, отговарящ на съвременните норми за функционалност, естетика и простор на разумна цена.
Степен на завършеност
Жилищен комплекс "Лабиринт" се състои от 6 еднакви сгради с по един вход и с по девет надземни етажа - с висококачествен дизайн и функционалност. В тях са разположени 239 апартамента, които се предлагат завършени по БДС, с опция за завършване до ключ.
Удобства
Жилищният комплекс е с контролиран достъп;
24 часа видеонаблюдение и жива охрана;
Водни площи, зони за отдих и детска площадка;
Осигурени са 334 паркоместа - 199 от тях - в подземен паркинг.
За нашите клиенти
Телефон за връзка: 0882 66 26 66
Каталог
Такса поддръжка
Начини на плащане
Начин на плащане 1

Заплащане на 20% от стойността на жилището при подписване на предварителен договор.

Останалите 80% се заплащат при издаване на акт 16 и прехвърляне на собствеността върху имота. 

Начин на плащане 2

Индивидулано договаряне за схемата на плащане за клиенти, ползващи ипотечен банков кредит за закупуване на имота.

Докосни дъгата

Жилищен комплекс "Лабиринт" е партньор на Детската диабетна асоциация "Докосни дъгата".

Част от сумата, получена за всеки продаден апартамент в комплекса, отива за закупуване на инсулинови помпи за деца с диабет тип 1. Всеки от бъдещите обитатели получава сертификат за дарение, удостоверяващ участието му в тази благородна кауза.

Амбицирани сме да закупим поне 10 помпи, чиято цена е между 5500 и 7000 лева.

Инсулиновите помпи позволяват на децата с диабет тип 1 да водят пълноценен живот, не по-различен от този на връстниците им. Те вече не са обречени на многобройни убождания денонощно всеки ден за проверка на кръвната захар и поставяне на инсулин, на самотен живот у дома, без спорт и забавления.